Greenbogue, Tinwald, Dumfries
Under Offer
Situated just 4 miles from Dumfries town centre, Greenbogue is a former farmhouse set in a quiet rural location with views across the Dumfriesshire countryside.
Sitting to one side of a large plot, the house is in need of refurbishment and modernisation and has the potential to extend, subject to local planning consents.
Greenbogue is a stone built property under slate roof with double glazed windows and doors. The house has an oil fired central heating system with radiators in all main apartments.
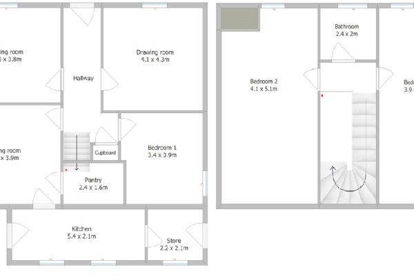
The front door opens to a large hallway. To the front of the house are two reception rooms both with fireplaces.
To the back of the house is a double bedroom and dining/breakfast room with open fire and large walk in pantry off this room. Through the dining/breakfast room to the rear of the property is the kitchen and a utility/store room, both with access to the garden. Upstairs are two double bedrooms and a family bathroom.
Outside there is a driveway and large garden, with several mature trees, surrounded by hedges.
Location
Greenbogue is situated 2 miles from the village of Tinwald and around 4 miles from Dumfries town centre. Local services such as convenience stores, post office and petrol stations can be found in Locharbriggs and Heathhall with further amenities in the county town of Dumfries with a variety of shops, cafes & restaurants, supermarkets, hospital, schools and a train service running between Carlisle and Glasgow.
Lockerbie train station, 15 miles away, provides travel to Edinburgh, Glasgow and the West Coast mainline.
- Tinwald 2 mile
- Dumfries 4 miles
- Lockerbie 10 miles
- Carlisle 35 miles
- Edinburgh 71 miles
- Glasgow 74 miles
What3Words
To find this property using the What3Words app, enter the following 3 words ///squaring.ballots.mole
Services
Mains electricity
Mains water supply
Private drainage with septic tank
Central heating – Oil boiler
Council Tax Band: D
EPC: F
Home Report
Available on request.
Viewing
Strictly by appointment with the selling agent, Stanley Wright.
Entry and Possession
Immediately upon completion.
Third Party Rights & Servitudes
The property is sold subject to and with the benefit of all existing servitude and wayleave rights, including rights of access and rights of way, whether public or private. The property is also sold subject to the rights of public access under the Land Reform (Scotland) Act 2003. The purchaser(s) will be held to have satisfied themselves as to the nature of all such servitude rights and others following their solicitors’ examination of the title deeds.
Offers
Offers over £190,000
Offers in Scottish Legal Form are to be submitted to the selling agents, Stanley Wright. A closing date for offers may be fixed and prospective purchasers are advised to register their interest with the selling agents following inspection. The Seller will not be obliged to accept the highest, or indeed any offer and has the right to accept an offer at any time or withdraw the property from the market. The Seller will not be liable for any costs incurred by interested parties.
Download Brochure
